Wanta-Architect
  • Home
  • apartments
  • bio
  • commercial
  • contact
  • exhibition/graphics
  • expressionist
  • graphic
  • historical
  • homes
  • kinetic
  • lofts
  • Marc’s Page
  • maximalist
  • modernist
  • objects
  • office/studios
  • philosophy
  • project list
  • projects (old)
  • residential
  • retail/hospitality
  • showrooms/stores
  • spiritual
  • Una’s page
  • wanta-architect pllc
  • Commercial
    • Exhibition/Graphics
    • Retail/Hospitality
    • Showrooms/Stores
  • Expressionist
  • Graphic
  • Historical
  • Kinetic
  • Maximalist
  • Modernist
  • Objects
  • Office/Studios
  • Residential
    • Apartments
    • Homes
    • Lofts
  • Spiritual
Select Page

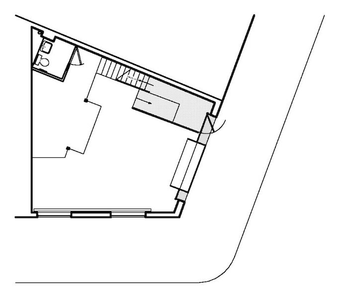
Adelaide Store, West Village NYC

Adelaide2512
Adelaide0105
Adelaide0119
Adelaide2510
AdelaidePlan

[Show slideshow]
  • wanta-architect pllc
  • bio
  • project list
  • philosophy
  • contact